5 locali in vendita

Genova, Via Bainsizza - Sturla
€ 279.000
Prezzo aggiornato
5 locali 5 locali
103 Mq 103 Mq
1 bagno 1 bagno

5 locali in vendita

Genova, Via Bainsizza - Sturla

Descrizione annuncio

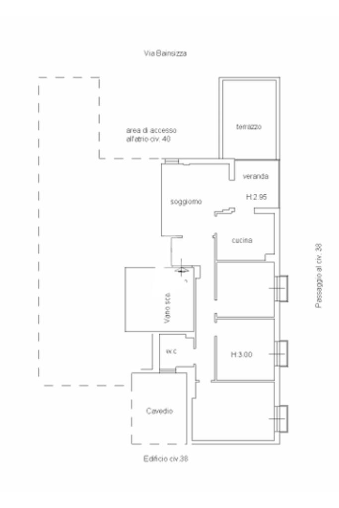
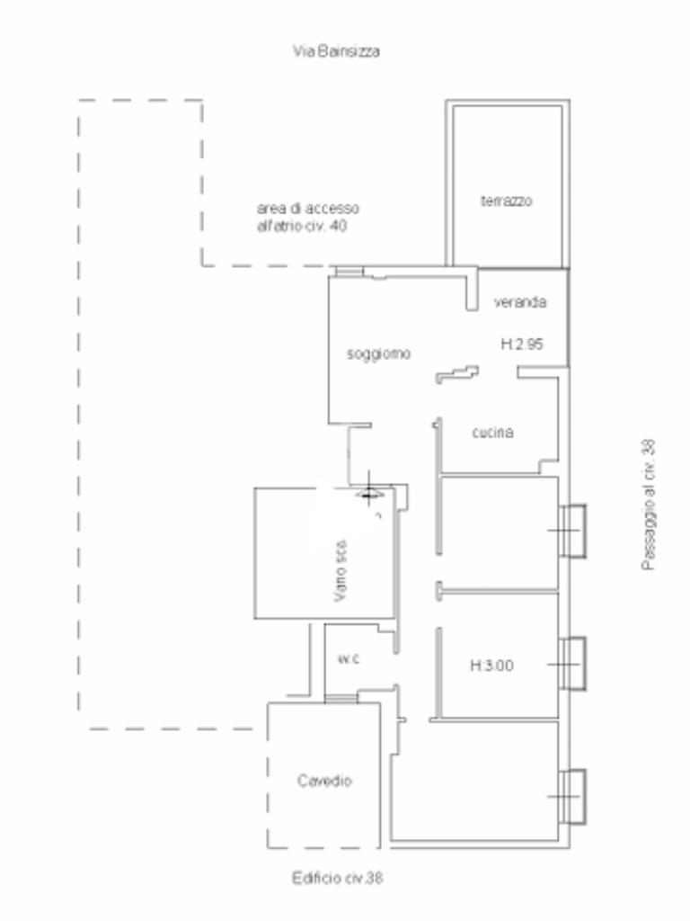
Via Bainsizza: nel cuore di Sturla, proponiamo in vendita un appartamento di 103 mq, situato al primo piano di un palazzo in buone condizioni con cornicione appena rifatto.

L'immobile, recentemente ristrutturato, offre un ambiente accogliente e funzionale.

E' composto da un ingresso che porta al soggiorno open space con la cucina, creando uno spazio ideale per la vita quotidiana e per ricevere ospiti. Da qui, si accede a una veranda che si apre su un ampio terrazzo vivibile, perfetto per momenti di relax all'aperto. La zona notte si compone invece di tre camere da letto e un bagno.

La luminosità degli ambienti è uno dei tratti distintivi di questa proprietà.

Completano l'offerta una cantina, utile per lo stoccaggio, e un posto auto scoperto di proprietà.

Questa soluzione abitativa rappresenta un'opportunità interessante per chi cerca una residenza confortevole in una zona ben servita della città.

Mostra tutto

Nelle vicinanze

Trasporto pubblico Trasporto pubblico
Brignole
Brignole
3,0 Km
stazione di Genova Sturla
stazione di Genova Sturla
490 m
stazione di Genova Quarto
stazione di Genova Quarto
1,7 Km
Trasporto pubblico
170 m
Europa 4 / Isonzo
Europa 4 / Isonzo
180 m
Ricariche auto elettriche Ricariche auto elettriche
Genova Bainsizza | EnelX
30 m
Genova Isonzo | EnelX
280 m
DriWe Naturasì Genova
510 m
Basko - Genova Sturla 2
540 m
Genova Vittorino Era | EnelX
730 m
Scuole Scuole
Istituto Tecnico Superiore Statale Majorana-Giorgi
250 m
IPSIA Piero Gaslini - Succursale
380 m
Scuola elementare di Stato Jessie Mario
500 m
Facoltà di Farmacia
530 m
UO Formazione aula 1
580 m
Farmacia Farmacia
Parafarmacia esigenza salute
190 m
Farmacia Comunale Isonzo
240 m
Farmacia Europa
330 m
Farmacia San Rocco
370 m
Farmacia
550 m
Ospedali Ospedali
Ospedale Pediatrico Giannina Gaslini
980 m
ospedale San Martino
1,3 Km
Casa di Cura Villa Montallegro
1,6 Km
Clinica Villa Serena
1,9 Km
Supermercati Supermercati
Carrefour Express
180 m
Ekom
220 m
Metà
270 m
Supermercati
300 m
Supermercati Sigma
370 m
Negozi Negozi
Panificio Campo di grano
200 m
Il Brucomela
230 m
Pane Piuma
330 m
Negozi
460 m
Panificio Spiga d'oro
480 m
Bar Bar
Le Tentazioni
200 m
Bar Operosi
220 m
Pasticceria artigianale Camelia
230 m
Bar Peo
270 m
Bar La Stadera
370 m
Ristoranti Ristoranti
Ristorante Le Casette
70 m
Ristorante Pizzeria Del Giò
240 m
Pizzeria 23 febbraio
430 m
Trattoria Pizzeria da Pino
550 m
Pizzeria Braceria Cave du Roi
590 m
Mostra tutto

Caratteristiche

Rif.:
61156951
Piano:
1 di 5 con ascensore (Piano basso)
Posti auto:
1
Terrazzi:
1
Camere da letto:
3
Arredamento:
Parziale
Mostra tutto
Prezzo Prezzo
€ 279.000
Rata mutuo Rata mutuo
€ 1.303 / mese
Spese annue Spese annue
€ 1.500
Proponi il tuo prezzoProponi il tuo prezzo
Immobile valutato con T·Valuta

Classe Energetica

Questo immobile è esente da classe energetica
Anno di costruzione:
1960
Riscaldamento:
Centralizzato
Tipo impianto:
A radiatori
Tipo alimentazione:
Metano

Prezzo ridotto di €1 (6%%)

Ti interessa visionare l'immobile?

Fissa un appuntamento  Fissa un appuntamento

Richiedi informazioni

Clicca su Leggi per aprire l'informativa
* Questi campi sono obbligatori

Calcola il tuo mutuo

Semplice e senza impegno
Anticipo

( % )
Mutuo

( % )

pochi semplici passi

inserisci i tuoi dati
Questionario completato
Grazie per aver richiesto un appuntamento senza impegno con un nostro Consulente del Credito e Assicurativo.

Hai inserito correttamente tutti i dati necessari e a breve riceverai una e-mail con un link da convalidare per inviare i tuoi dati.
Affiliato
Studio Sturla Snc
Via Isonzo, 87R 16147 Genova (GE)

Il nostro staff


  • Simone Cavo
    Affiliato

  • Mattia Mangano
    Collaboratore

  • Raffaella Meazzi
    Coordinatrice
Via Isonzo, 87R 16147 Genova (GE)
Zona: Sturla
Mostra su mappa
Affiliato
Studio Sturla Snc
Via Isonzo, 87R 16147 Genova (GE)

2026 Tecnocasa Franchising S.p.A. - P. IVA 08365160152 - Via Monte Bianco 60/A 20089 Rozzano (MI). Ogni agenzia ha un proprio titolare ed è autonoma. Privacy policy | Policy utilizzo | Cookie policy